412 Marten Street
Offered at: $869,400
MLS®: A2287089
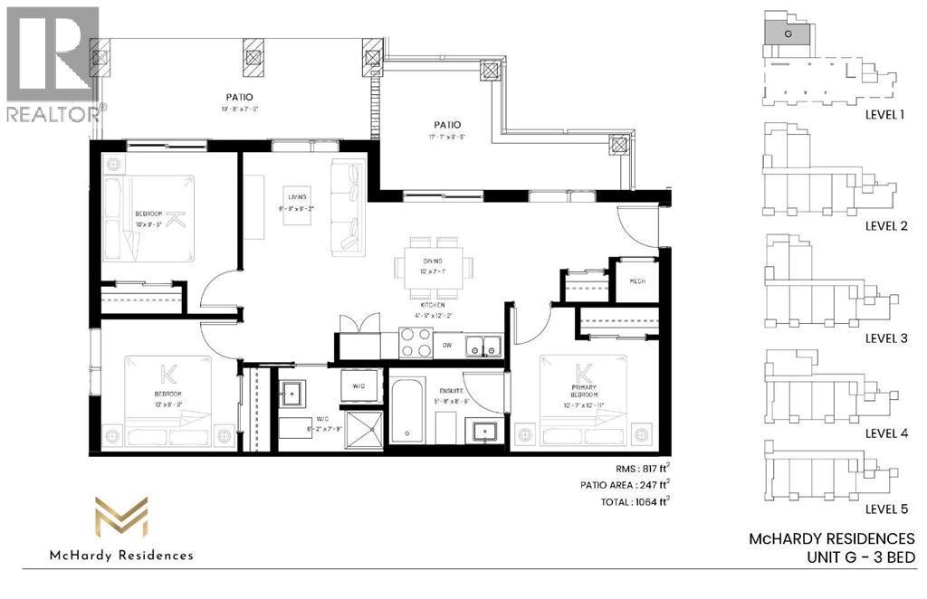
Located on a quiet street just minutes from downtown Banff’s cafés, restaurants, and everyday amenities, McHardy Residences introduces a rare opportunity to own a newly built home designed for full-time mountain living. This 3-bedroom, 2-bath STAND-ALONE residence offers something incredibly hard to find with no neighbors on either side, creating exceptional privacy and quiet. Step outside onto a massive 247 ft patio the perfect place to unwind after a day out on the trails. Large triple pane windows frame fantastic mountain views, while the thoughtful layout blends comfort and function for those who call Banff home year-round. Set in a peaceful neighborhood yet close to the energy of downtown, this unique property delivers the lifestyle locals are looking for space, serenity, and a true connection to the mountains. Additional features include quartz countertops, stainless steel appliances, in suite laundry, vinyl flooring, and assigned storage lockers providing valuable space for all of your mountain gear. (id:6769)
Quick Stats
Key Home Data
2
BATH(S)
3
BED(S)
3321
SQFT
YES
SHOWING AVAILABLE
Payment Calculator
Calculate your monthly mortgage payment.
Mortgage Amount
$
Amortization
years
Payment Freq.
Interest Rate
%
Calculating...
All About the Details
See specific details below.
Neighbourhood Statistics
Get to know your neighbourhood.
Similar Properties
Other properties you might like.





